dla

St Bride’s House

A new layer in history

46,500 ft² office
Re-use, Workplace
46,500 ft² office
Re-use, Workplace
DWS
Architecture & Interiors
On Site
BREEAM Excellent
EPC A
Fitwell
WiredScore Gold
NABERS 4.5*

01 Introduction

The refurbishment and extension of a unique commercial building on Salisbury Square, off Fleet Street, overlooking St. Bride's Church

St. Bride’s House is located on a richly layered urban site with decades of development and redevelopment in its past. It is now primed for another chapter in its story, it’s wholesale redevelopment to meet today’s highest workplace standards.

Our scheme exposes unique elements of the existing structure while modernising the building for the next generation. By creating a welcoming reception, improving thermal efficiency, and maximising natural light, we aim to drastically improve the experience for all those who interact with the building and its surrounding public realm.

We propose to relocate services and enhance ceiling heights to improve the quality of the internal spaces. The design includes access to new outdoor spaces, and a lightweight roof extension with 360-degree terracing, blending the existing structure’s geometry with local heritage influences for a new midtown aesthetic.

02 Site History

Working with an existing building in the Fleet Street Conservation Area.

St Bride’s House stands within the Fleet Street Conservation Area in the City of London. Built in 1982 as speculative offices, it incorporates façade elements from two early 20th-century buildings (1908–1910). While not listed, its Salisbury Square elevation holds local heritage value, echoing the gatehouses that once flanked the original St Bride’s Passage before its relocation in the late 20th century.

Rooted in an area steeped in history, the building neighbours Sir Christopher Wren’s St Bride’s Church – whose spire inspired the tiered wedding cake – and other listed landmarks such as Lutyens’ former Reuters building and the St Bride’s Foundation. Engaging with the church and local groups helped us draw these stories into the design, strengthening the building’s connection to its namesake and setting.

03 Community & Stakeholder Engagement

A collaborative approach

The project team, client, and City of London officers collaborated closely to balance the building’s relationship with its historic surroundings. Socially, the goal was to celebrate local heritage without resorting to pastiche.

Patterns from St Bride’s Church informed the cast lift core cladding and the six-storey decorative grilles facing the church, while the formerly dark undercroft now features bas-reliefs narrating two millennia of worship. The historic path of St Bride’s Passage is subtly echoed in the reception’s cobbled flooring. These design gestures were shaped through direct dialogue with community representatives.

From a townscape perspective, planners supported the retention of the existing structure. Working with consultants and heritage officers, we defined the framework for a sensitive extension. Iterative 3D modelling and dynamic view studies ensured minimal impact on key sightlines to the church spire.

04 Project Narrative

A unique opportunity to upgrade a large-scale commercial asset in the Fleet Street Conservation Area

St. Bride’s House embodies the evolving layers of London’s urban fabric. As architects, our role is to guide buildings into their next era with minimal demolition, adding to a story that began long before us and will continue long after.

Now, three decades after its last major reconstruction, the site is ready for renewal. Sustainable upgrades, from improved fabric performance and wellness facilities to smart technology, natural light, and flexible spaces – will ensure its longevity and relevance. We’re proud to contribute the next chapter in the St. Bride’s neighbourhood story.

05 Approach to Design

Respecting the existing building envelope

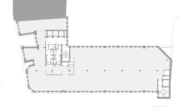
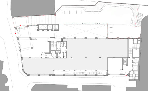
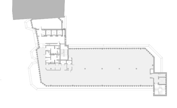
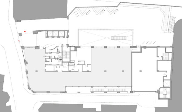
Key design drivers include maximising floor-to-ceiling heights, upgrading the thermal envelope, and reusing existing building elements. Floor plates are being opened up to create seamless, light-filled spaces, with opportunities to expose and glaze spandrel panels internally.

Services and back-of-house areas will be relocated to underused zones, freeing up valuable NIA. Ceiling heights are enhanced by exposing the original coffered slabs, while every floor will offer outdoor access and integrated greenery to promote wellbeing.

In collaboration with the City of London, the project will revitalise the courtyard public realm, introducing historical reliefs and improved lighting to St Bride’s Passage. State-of-the-art cyclist and commuter facilities, including a dedicated lift, will provide a health club-style experience, complemented by a lightweight roof extension with 360-degree terraces and planting.

The building’s renewed identity merges the geometry of its existing structure with heritage influences, expressed through signage, artwork, and furnishings. Its exposed structure will define a distinctive “midtown” aesthetic – blending the texture of the East with the polish of the West End.

06 Climate Leadership

An excellent example of sustainable principles

Sustainability has been central to the project, driving upgrades across circular economy, carbon performance, water efficiency, ecology, transport, and wellbeing. The scheme targets BREEAM Excellent, WELL Gold, and NABERS 4.5 stars through close collaboration with the design team.

At St Bride’s House, DLA introduced a basement lounge with a bookable classroom, nursing facilities, and an end-of-trip suite featuring a RiRo cycle hub and premium, sports-club aesthetic – enhancing tenant experience while contributing to multiple sustainability credits.

07 Passionate About Delivery

Navigating an existing fabric

We encountered two key challenges during design development. The first was maintaining operations for a tenant remaining in situ, requiring careful planning around phasing, access, sanitation, and power. Working closely with the design team, we developed tailored solutions to ensure minimal disruption throughout the process.

The second challenge was obtaining accurate data on the existing building – a crucial factor in any refurbishment project. The initial survey, conducted while the building was occupied, required assumptions, so a second, post-strip-out survey was commissioned. A detailed point cloud scan then provided laser-accurate information to revalidate our model.

Our role included coordinating the Revit model and integrating structural and MEP information to assess potential clashes early and maintain spatial efficiency. Engaging with suppliers and subcontractors during tender also allowed us to validate key design strategies. These collaborative and meticulous practices will continue into the next project phase.

08 Technology & Innovation

Celebrating the existing structure

St Bride’s House is built around an in-situ concrete frame with coffered slabs – a defining structural feature now set to be revealed. To ensure safety, DLA collaborated with specialists to conduct ferroscans, identifying reinforcement placement and enabling the use of intumescent paint for compliant fire protection.

The original gatehouses facing Salisbury Square have also been reconnected through a new glazed atrium, opening up the ground floor and enhancing the reception experience while respecting the site’s heritage.

Modern smart technology completes the transformation. Occupants will benefit from digital climate controls, CO₂ sensors, live travel updates, and a dedicated app for managing facilities such as lockers and bookable rooms – creating a workplace that’s as intelligent as it is inspiring.

09 Collaborators

DWS – Client

CBRE – Project Managers

Bigham Anderson Partnership – Quantity Surveyors

Perega – Structural Engineering

GDMP – MEP Engineering

Gerald Eve – Planning

Donald Insall Associates – Heritage

Twin & Earth – Sustainability

Semper – Fire Engineering

Caneparo – Transport

Salus – Building Control

GIA – Daylight / Sunlight / Rights of Light

CBRE PD – CDM Principle Designer

Project team

Next project

Beal High School

Making a lasting difference to the families of Redbridge